Marketing Support 9350852066, 9650133237, 8272081991


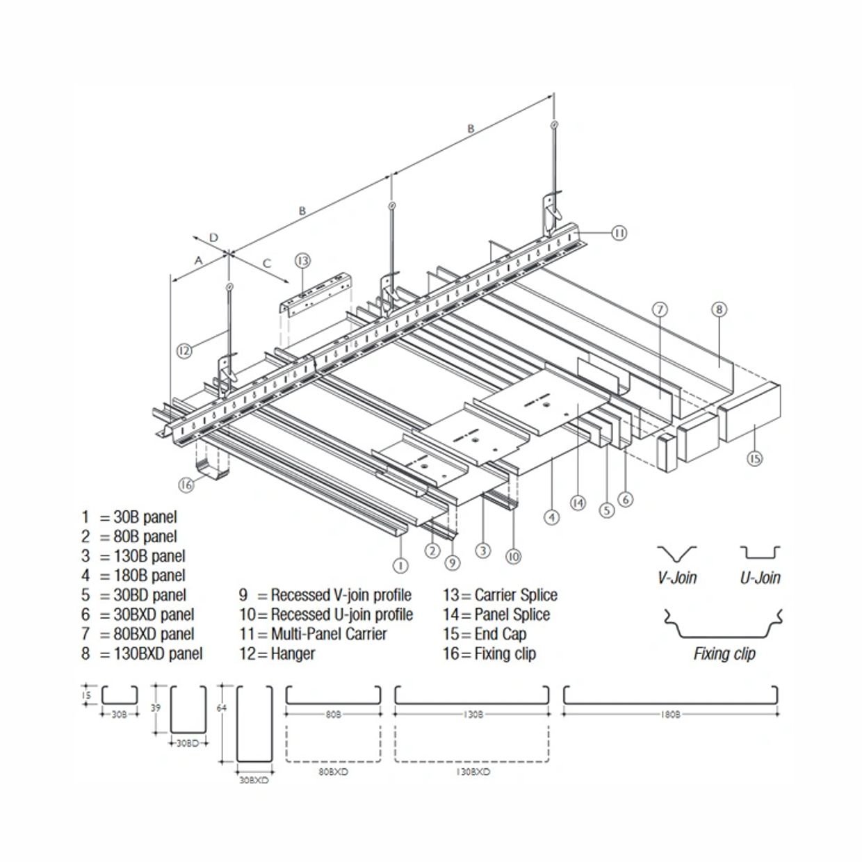
Variety of high performance acoustic hanging baffles in different sizes and shape. Multi Baffle Ceiling is useful for many different types of area and application. Baffle Ceiling combine performance with high NRC Ratings and value for money to solve the most demanding of noise reduction problems.
Multi Baffles that mount up in the ceiling are one of the most effective methods to reduce reverberation and noise, because both sides of the baffle are exposed to the room. There are many types and coverings for indoor and outdoor applications. These Baffle ceilings are available in Galvanized Iron and Aluminum in a choice of different colors with 60 microns powder coating. All the sound baffles are fitted with hanging system used for vertical suspended or horizontal suspended from the ceiling. These baffles are light weight and do not add any extra load on ceiling.
Available Sizes: 40x60mm, 40x75mm, 50x25mm, 50x50mm,50x75mm, 50x100mm, 30x100mm



Copyright © P. R. CEILING PRODUCTS - All Rights Reserved.
We use cookies to analyze website traffic and optimize your website experience. By accepting our use of cookies, your data will be aggregated with all other user data.